VERTICLOSE-2-ZILV Ferme-portail hydraulique jusqu'à 150 kg LOCINOX

VERTICLOSE-2-ZILV Ferme-portail hydraulique jusqu'à 150 kg LOCINOX

Choix de l'option
Paiement en 3X, 4X sans frais ou jusqu'à 10X avec ALMA.
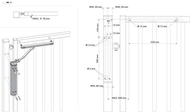
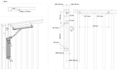
Ferme-portail VERTICLOSE-2
Ferme-portail hydraulique puissant et polyvalent pour portail jusqu’à 150 kg. Pré-tension intégrée, réglage continu de la vitesse de l’à-coup final, système de montage Quick-Fix, finition en aluminium, conçu pour durer des années.
Caractéristiques
– En acier inoxydé
– Ancrage du pêne dormant de 23 mm
– RAL : ZILV
– Référence : VERTICLOSE-2-ZILV
– Garantie : 3 ans












